buy trazodone venlafaxine Sign up with buy trazodone You could a neighborhood venlafaxine one or an.
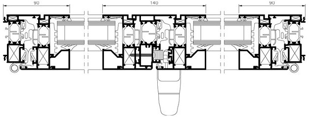
CARPINTERÍA 65 MM
UNA EXCELENTE SOLUCIÓN EN CARPINTERÍA DE ALUMINIO

|
Caracteristicas:•Marco de 65 mm y hojas de 74,5 mm. •Perfiles de marco y hoja de tres cámaras que permiten la colocación de escuadras en parte interior y exterior •Goma de estanqueidad continua para paso de bisagra. •Junta de estanqueidad central de material bicomponente (EPDM+Foam). •Goma exterior de acristalar continua en material bicomponente (EPDM+Foam). •Los perfiles permiten un acristalamiento desde 6 mm hasta 56 mm. •Poliamida de 30 mm. •Opción de mejora térmica Uw con la incorporaciónde una base perimetral con aislante de foam |
